凡例
| 照明 | 配管・配管用パネル | カーテンボックス※1 | 室外機置場スペース ※2 | ||||
| 送風機 | 有圧扇 | ホイストクレーン用 ブラケット | ガソリントラップ | ||||
| 集水枡 | コンセント (FL+300) | テレビ端子 (FL+300) | 電話回線 2回線/社 (FL+300) | ||||
| 照明、換気扇スイッチ (FL+1300) | 警備カードリーダー (別途工事) | 電灯分電盤 | 動力盤 |
- カーテンボックスへのブラインド本体は入居者負担
- 室外機本体は入居者負担
A棟 B棟(3階~5階) C棟
出入口方向・バルコニー方向

長手方向

平面図

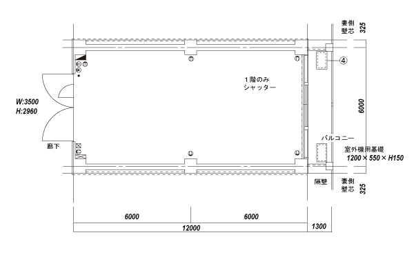
B棟(1階・2階)
出入口方向・バルコニー方向

長手方向

平面図

D棟(1階)
出入口方向・バルコニー方向

長手方向

平面図

D棟(2階~5階)
出入口方向・バルコニー方向

長手方向

平面図
